• Tadeusza Boya-Żeleńskiego 4
  • boya4@smbudowlani.pl

WAŻNE

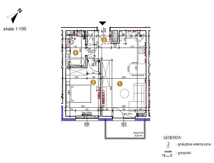
Pomiary powierzchni użytkowej dokonywane są wg normy PN-ISO 9836:2022-07. Wymiary poszczególnych pomieszczeń pochodzą z projektu wykonawczego i nie uwzględniają grubości tynku. Powierzchnie pomieszczeń obliczono z uwzględnieniem tynku wewnętrznego grubości 1,5 cm; *Powierzchnia sprzedażowa to łączna powierzchnia pomieszczeń wg normy PN-ISO 9836:2022-07 wraz z powierzchniami pod ścianami działowymi; *Wymiar okna na odnośniku określa szerokość/wysokość otworu w murze; *Wymiar drzwi na odnośniku określa szerokość/wysokość otworu w świetle przejścia; *Standard wykonania instalacji wod.-kan. obejmuje główne miejsce odprowadzenia ścieków i punkt poboru wody. Rozprowadzenie instalacji wewnętrznych wod.-kan. w gestii lokatora.

Łączna powierzchnia pomieszczeń wg projektu:

40,28 m2

Powierzchnia sprzedażowa:

41,78 m2

wstępny koszt budowy lokalu:

455 402,00 zł

wstępny koszt budowy balkonu/tarasu:

4 050,00 zł

wstępny koszt budowy pomieszczenia przynależnego:

11 400,00 zł

wstępny koszt budowy ogółem:

470 852,00 zł

Mieszkanie nr.1

  • Salon z aneksem kuchennym

    21,80 m2

  • Pokój

    10,65 m2

  • Przedpokój

    3,44 m2

  • Łazienka

    4,02 m2